如果你打開Fusion360上方的工具列,你會發現有很多各式各樣的工具,這些工具在繪圖時會非常有幫忙,本章會介紹幾個常用的工具。
Advance 3D drawing1. Plane & axis練習題1練習題22. Mirror & Pattern練習題13. Shell練習題14. Loft練習題1練習題2練習題35. Revolve練習題1練習題26. Sweep練習題1練習題27. 混合練習練習題1
輔助平工具是常用的工具之一,其中幾個常用的包括:

Offset Plane: 指定一個平行於點選面的偏移平面
Midplane: 指定兩個平面的中間面,對於用mirror feature十分有用
Plane through Two Edges/ Plane through Three Points: 常用於指定一個平面,將立體切開
其他功能用到的時候再講解。

首先在正視圖建立底座

對稱擠出65mm

用Plane at angle建立一個30度的面

在這個面建立sketch, 繪畫後就可以用extrude擠出


最後重新將sketch2顯示出來,如題目一樣,將開孔穿到最底

每個格的尺寸為10x10mm

首先在正面建立方形和指定斜面的尺寸

整個方形連同斜面擠出40

在側面建立sketch, 指定另外斜面的尺寸

將兩個sketch都顯示出來(如果它自動隱藏了的話), 用plane thought 3 points

用split body指令將方形切開, 之後就可以將平面和不要的角隱藏

對於重覆性高,但完全相同的動作, 可以用mirror和pattern來快速完成。

劃一個立方體:
在xy平面建立一個new sketch
用center rectangle劃一個130x80mm的方形
之後用 extrude擠出50mm高


挖空一角:
在方形的頂部建立一個new sketch
用hotkey R劃一個30x25mm方形,
之後用 extrude減去30mm深


使用mirror指令:
選擇type為feature
objects為剛剛的減去feature
mirror plane選擇yz平面,如果物件擋住了yz平面,可以zoom遠一點或旋轉一下
重複mirror指令:
這次選擇的objects為減去feature和剛剛的mirror指令
mirror plane選擇xz平面


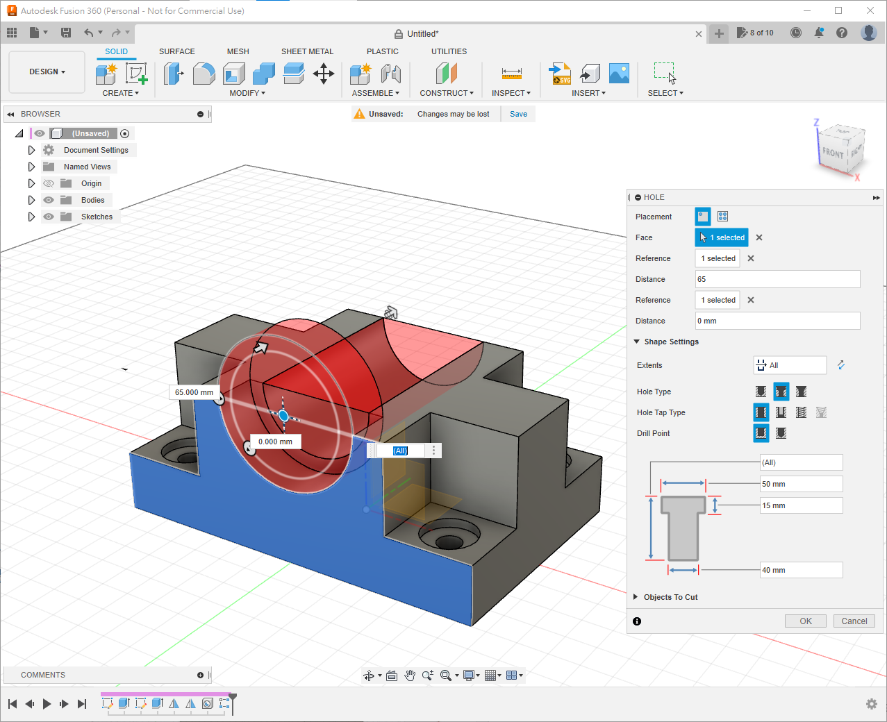
開啟hole指令(快捷鍵為H):
點選右下角
使用reference指定距離邊緣的距離
根據圖則,分別為15mm和12mm
hole的深度(Extents)選擇All
Hole Type選擇中間的平底孔Counterbore
Hole Tap Type選擇第一個Simple
Drill Point選擇任意一個,因為孔是完全穿的
根據圖則,孔的要求是4 HOLES Ø8 THRU ALL ⌴Ø18 ↧3:
Ø8 THRU ALL即直徑8、完全鑽穿
⌴Ø18 ↧3即平底孔直徑18mm,深度3mm


4個孔可以rectangular pattern指令:
rectangular pattern可以一次複製多個功能,並以矩陣形式呈現
type選擇feature
objects選擇剛剛的hole feature
Directions可以選擇初始向哪一邊,例如選x軸
Distance type選擇Spacing,兩個距離分別是100和56mm


中間的圓孔可以用new sketch劃兩個半圓用擠出減去或簡單地用hole指令完成

最後兩個螺絲孔可以使用holes指令完成:
距離邊緣15mm與40mm
hole type選擇第一個simple
hole tap type選擇第三個tapped,即孔都是攻牙
Thread Offset選擇第一個
Drill Point選擇尖尾的
圖樣上是M12x1.5即M12螺絲,絲距為1.5mm
最後選擇Modeled,就可以看到模型有螺絲紋了

接著緣著yz平面, mirror這個螺絲孔
Compute Option要用Optimized才會將螺絲孔一次過mirror

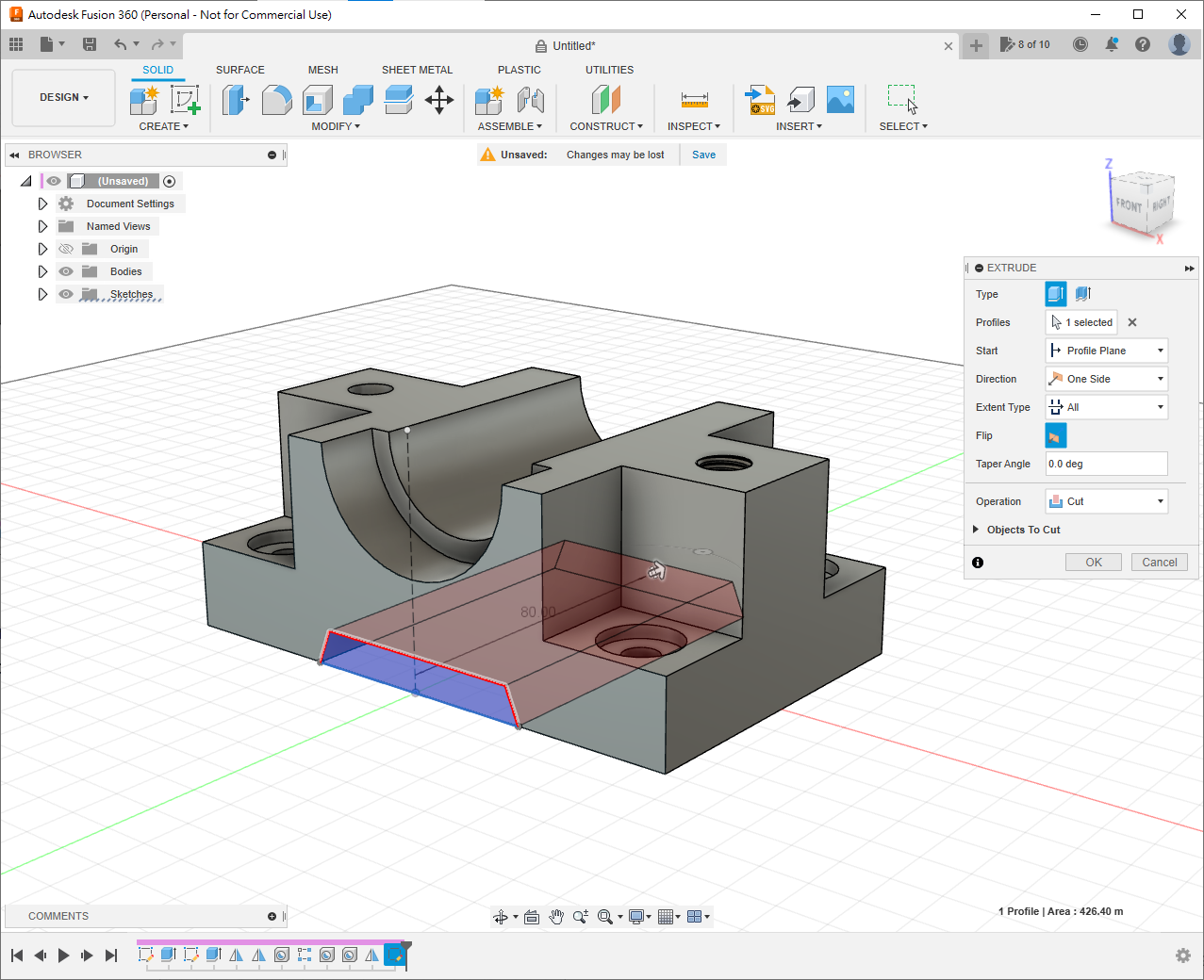
在前面建立new sketch,用extrude減去


最後選取需要做fillet的邊, 修圓角2mm


Shell為十分好用的薄殼功能,點選作為開口的面,指定厚度,就能做到一個碗一樣的容器,省卻offset再將立體相減的步驟。

試試完成下面的題目:

Hints:


先建立一個底, 擠出


劃一個圓柱體
用rectangular pattern來同時製作8份



在底部開一個new sketch來劃
記得這3個圓柱不是到lego的最底,有1.2mm的距離
Loft是常用的成型工具之一
對於常見的喉管連接工件,因喉管有不同尺寸,有圓有方,如果要製作一個連接器,需要劃一個上下圓上方的立體
如果使用一般手繪畫,會非常麻煩
但是常見的CAD圖軟件都有一個叫做Loft的功能,可以將不同造型的面連接
可以直接將兩個面相接,也可以指定一條需要穿過的中心線

試試下面這幾題:


在xy平面建立一個半徑170mm的圓, 擠出40mm


用offset plane, 點選剛剛的圓形頂部, offset 315mm
在剛剛的offset plane建立new sketch, 劃一個直徑170mm的圓, 並距離原點225mm


用loft功能, 點選剛劃的圓和圓柱的頂部, guide type選擇不需要Rails

將170mm直徑的圓擠出40mm, 之後就可以用mirror功能, 選擇剛剛的兩個features做鏡像


最後用shell功能造成簿殼, 要穿孔的面分別為頂的兩個圓和底部的圓, 選擇inside 2mm




Hints:



下圖尺寸單位為: inch(吋), 你可以在fusion360用keyword unit搜尋change active units指令,將單位修改為吋

旋轉成型工具就有點似現實世界中的車床般,透過緣著一個軸旋轉一個profile成型。

試試以下這兩題:
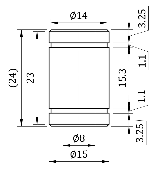
軸承是眾多機械零件中十分重要的一環
軸承的尺寸是固定的,在設計製作時必須首先考量軸承的尺寸才能決定創作物的尺寸
軸承尺寸越大,價錢就會幾何級數上升
對於一些精度和轉速都不高的應用場合,可以考慮使用現成的Ø4.5的不銹鋼珠自製3D打印軸承

首先在正面(xz平面)上建立一個new sketch
根據圖樣,在邊緣距離原點20mm位置建立一個6x6 center rectangle
邊緣距離原點20mm,因為軸承內徑為40mm,半徑為20mm
建立一個Ø4.8 circle
補上中心線
建立兩條對稱線,留空0.5mm空隙
使用revolve指令繞z軸轉360度建立實體
如果出現一個藍色和一個橙色的revolve指令,選擇藍色的,因為藍色才是實體
橙色的revolve只會建立一個曲面


在xy平面建立一個new sketch
使用快捷鍵p投影兩條邊變成兩個點
補一條中心線
劃一個Ø4.8的圓
用擠出工具減去上面的孔



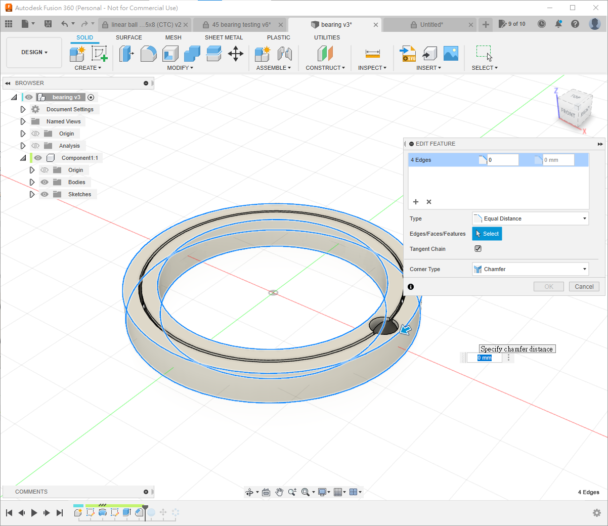
用chamfer工具, 選擇圓的4邊修倒角0.5mm


用sphere指令, 在原點建立一個Ø4.5的球體
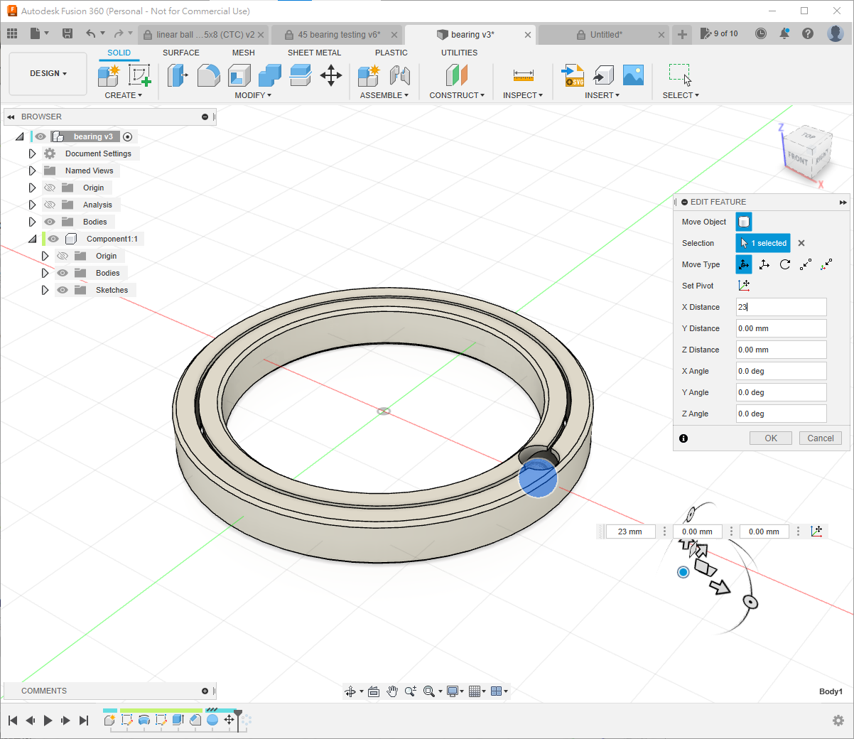
用move指令, 將球體向x軸移動23mm


最後就可以利用circular pattern工具, 將球體旋轉複製30份

第二題則為常見於3d打印機的8mm直線軸承, 請自行完成。


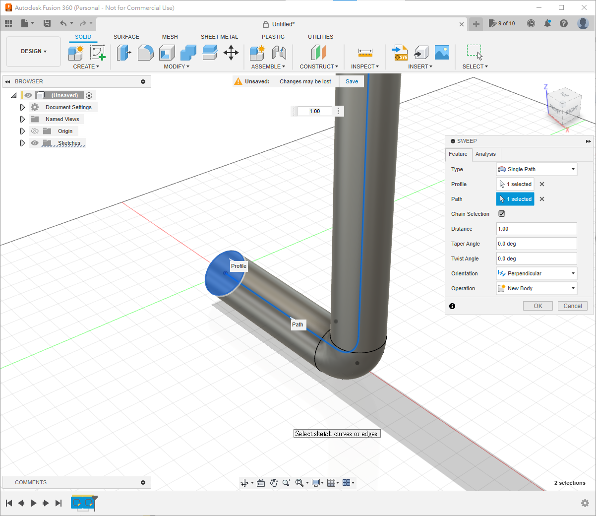
掃掠成型(Sweep)工具是指將一個profile緣著一條軌跡掃掠。


首先在正面(xz平面)建立一個new sketch, 跟據圖則先劃管的中心線

在yz平面上建立new sketch, 跟據圖則, 劃管的外直徑, 即Ø25的圓


用sweep指令, 用圓形作為Profile, 用管的中心線為Path, 建立管的實體

用shell指令, 點選管的兩頭, 建立2.5mm厚度的管殼

在管的末端, 建立new sketch, 跟據圖則所示劃出接法蘭的尺寸Ø45的圓, 用hotkey E擠出7.5mm


接著, 在法蘭的表面開一個new sketch, 跟據圖則劃出六個接口的螺絲孔
用hotkey E減去, Extrude type選用to object, 點選法蘭後面的面


最後, 重覆剛才的步驟, 在管的另一面建立相同的法蘭即可

這題你需要用到plane along path


以下題混合幾個常用的造型工具。
